快速門是能滿足:快速、節能、密封、高效、抗風、環保于一身的新型工業門,擁有很高的可靠性和很強的實用性,通過高速運行可對抗強對流風壓。憑借其極高的工作效率、極低的故障率,在當今的工業領域占有重要地位。廣泛用于地下車庫、汽車制造廠、食品、化學、紡織、電子、超市、冷凍、物流、倉儲等多種場所,可極高的滿足高性能物流及潔凈場所
作用:改善室內環境,提高通行效率
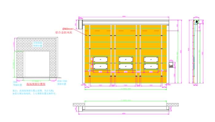
一、BKS001硬質快速門(適合外用)
渦輪硬質快速門既可防盜又可抵御天氣變化,能夠阻斷室內外空氣對流,保溫、隔熱,被廣泛應用于需頻繁出入的快速通道,不僅可以優化您的工作流程,更將顯著提升您的物流效率,是工業節能、降低能耗的理想選擇。
開啟方式:
1、螺旋渦輪式
2、分節提升式
門簾機構:閃光銀抗風壓鋁合金復合門板;厚度:22-43-60-80mm,標配碳玻璃安全透明視窗,通過軟連接膠條將門板間進行密封,配合采用鋼鋁復合配重密封底梁
電機系統:西門子開門機(德國)
控制系統:西門子變頻控制系統(德國)
提升機構:雙螺旋渦輪鋁合金軌道、垂直鋁合金軌道,橢圓鋁合金軌道
安全系統
1、光幕保護系統
2、底部安全保護邊
3、高精度旋轉編碼器限位
抗風能力:32 m/s(國標抗風等級12級)
保溫系數:K-VALUE 0.4W/M2K
氣密性:8.68M3/(M2.H)達國際3級
水密性:≤700Pa,達國際6級
絕緣保護:IP54,即使在惡劣環境下使用亦能防水防塵
預留端口:電控系統預留:紅外線安全保護開關,地磁感應開關,雷達感應開關,接繩開關,遙控開關,雙門互鎖,遠程控制等工程改造時常用的一些信號接口,并采取開關量式信號接入,兼容性強,大大減少了后期改造時所需的費用



產品詳情:拉鏈快速門能夠使車輛快速進出冷藏室,減少溫度變化;良好密封,減少冷空氣損耗、節約能源;快速冷藏庫門上的隔熱門簾能夠減少冷凝和結冰。在溫暖的外部溫度和寒冷的內部溫度之間形成很大界限,該高性能冷藏庫專用門的側門柱上的低耗電加熱電纜有助于減少結冰,
開啟方式:卷簾式
電機系統:西門子開門機(德國)
控制系統:西門子變頻控制系統(德國)
安全系統:
光幕保護系統
底部安全保護邊
高精度旋轉編碼器限位
抗風能力:32 m/s(國標抗風等級12級)
保溫系數:K-VALUE 0.4W/M2K
氣密性:8.68M3/(M2.H)達國際3級
水密性:≤700Pa,達國際6級
絕緣保護:IP54,即使在惡劣環境下使用亦能防水防塵
預留端口:電控系統預留:紅外線安全保護開關,地磁感應開關,雷達感應開關,接繩開關,遙控開關,雙門互鎖,遠程控制等工程改造時常用的一些信號接口,并采取開關量式信號接入,兼容性強,大大減少了后期改造時所需的費用
功能和優點:
打開時間短,密封緊密,節約能源
自動、快速回轉能夠減少換氣增強冷藏效率
可選擇的隔熱門簾和加熱的側壁柱減少結霜
自修復門簾,減少故障時間,降低維修成本
安全彈性門簾上沒有硬質零件,使用壽命長
門框標配橡膠密封條,確保與門簾之間的良好密封
這款門的透明門簾緊 緊嵌入在軌道中,使室內氣體的泄漏量很少


軟質快速卷簾門是一款能夠高速運行、具有隔斷功能的新型快速門,外觀美觀大方。該產品具有很高的可靠性、實用性、易操作及維護成本低。控制系統采用工業運動控制領域尖端伺服技術,確保在應用中每年動作達 15 萬次以上。
軟質快速門門簾采用比利時希運進口 1.0-1.5mm- 厚的內夾網狀玻璃纖維的 PVC 涂層布,門簾可以根據客戶要求添加透明視窗,能夠滿足客戶多方面的要求。 同時,因為其節省空間的結構特點(例如,很窄的側框),PVC快速門非常適合被應用于自動化傳送帶或運輸系統中。其能夠保障安全、快速的材料流通。
驅動裝置:德國SEW電機
主控制箱:日本三菱變頻器,日本三菱PLC,電腦編制程序組成
門體材料:材質采用法國或比利時產高密度工業基布,厚度為1.2㎜
門體顏色:橙、黃、藍、紅,可根據客戶提供的色卡定制
門框材料:軌道采用優質高強度不銹鋼、鋼質或鋁質軌道
密封包廂:采用冷軋板鋼構,優質靜電噴涂防銹處理
控制方式:可按紐式、拉繩、遙控、微波、感應、磁環、手動應急開啟
安全裝置:道軌下方裝有紅外線感應裝置,快速門卷簾布底部裝有安全氣囊保護
運轉速度:開啟和關閉速度為0.8-2.0米/秒
使用電源:電源為380V/220V可選
密封性能:底端裝有加重隔氣布,它與各種不平坦地面緊密結合,道軌配密封毛刷,兩側全部保持密封
使用溫度:-30℃~+70℃
隔音性能:關門狀態下門內外差值14分貝
預留端口:電控系統預留:紅外線安全保護開關,地磁感應開關,雷達感應開關,接繩開關,遙控開關,雙門互鎖,遠程控制等工程改造時常用的一些信號接口,并采取開關量式信號接入,兼容性強,大大減少了后期改造時所需的費用




產品介紹:配有加強防風條的門簾,通過帶傳動,折疊 堆積在門洞上方,從而實現開門。在整個門 高方向,每隔600 mm都有一根高強度的橫向鋁型材作為加強。 每門標配一節高度為600 mm的透明門簾作 為視窗,若需更多透明視窗,請咨詢。 非常適合外裝 V 9012 L 的安裝只需要很小的頂部空間( 最小僅需1350mm),如果需要還可以裝在廠房外墻上,因此非常適合空間有限的場合。小巧的電機隱藏在門框以及門罩內,免受外界惡劣天氣的影響。還可通過選配安 裝于門框上的一體式外部控制組件即可簡 單方便的進行操作。(需選配一體式外部控 制組件)
驅動裝置:德國SEW電機
主控制箱:日本三菱變頻器,日本三菱PLC,電腦編制程序組成
門體材料:材質采用法國或比利時產高密度工業基布,厚度為1.2㎜
門體顏色:橙、黃、藍、紅,可根據客戶提供的色卡定制
門框材料:軌道采用優質高強度不銹鋼、鋼質或鋁質軌道
密封包廂:采用冷軋板鋼構,優質靜電噴涂防銹處理
控制方式:可按紐式、拉繩、遙控、微波、感應、磁環、手動應急開啟
安全裝置:道軌下方裝有紅外線感應裝置,快速門卷簾布底部裝有安全氣囊保護
運轉速度:開啟和關閉速度為0.8-2.0米/秒
使用電源:電源為380V/220V可選
密封性能:底端裝有加重隔氣布,它與各種不平坦地面緊密結合,道軌配密封毛刷,兩側全部保持密封
使用溫度:-30℃~+70℃
隔音性能:關門狀態下門內外差值14分貝
預留端口:電控系統預留:紅外線安全保護開關,地磁感應開關,雷達感應開關,接繩開關,遙控開關,雙門互鎖,遠程控制等工程改造時常用的一些信號接口,并采取開關量式信號接入,兼容性強,大大減少了后期改造時所需的費用





產品介紹:柔性升降機庫門門扇為兩層雙面涂覆聚氯氣乙烯阻燃防水布或類似產品固定在水平鋼龍骨或水平鋁合金龍骨上,龍骨兩端設有導輪,門扇上、下設鋼梁等,由配有專用控制控制系統和門體行程限位檢測程序,即時對門體限位進行監控。手按開門按鈕,相對應的減速機開始轉動鋼繩拉起門體下部的過梁沿導軌上移,布簾折疊,開門到位后由限位開關自動控制門體停止運動。如遇特殊情況,只要按下“急停”按鈕即可斷電,門體停止運行。
門簾:高強度的PVC涂層聚酯纖維門簾
導軌:導軌采用標準性高,根據門體大小,滿足所需強度
開門機:機庫門專用開門機(起重機),體積小、動力強,穩定可靠
密封裝置:專用軌道護板、三元乙丙橡膠密封
增開小門:按設計條件設計門扇,門扇上設人員疏散小門,其尺寸為900×2000(h),向外開啟,當小門開啟式,大門扇應停止運行,
報警裝置:門體啟閉過程中,門體一側的聲光報警裝置作用,提醒注意。大門啟閉過程禁止人員和車輛通行。
排水融冰裝置:活動立柱就位地坑應設受力蓋板、排水系統;嚴寒及寒冷地區還應設融冰裝置。
使用環境:該門的特點是適用于兩側極小空間的建筑,和普通的鋁制的卷簾門不同,也不同于推拉式的鐵大門。主要適用于飛機庫、造船、煉鋼工業、礦產加工、大型庫房、物流通道等大型工作環境
特點(優點):綜合性能、價格及外觀來看。該門性價比極高,安裝簡單方便是適用于兩側很小空間的建筑
導熱系數:門扇傳熱系數≦3.0W/m2·℃;
開門速度:門扇及活動立柱運行速度 可調
預留端口:電控系統預留:紅外線安全保護開關,地磁感應開關,雷達感應開關,接繩開關,遙控開關,雙門互鎖,遠程控制等工程改造時常用的一些信號接口,并采取開關量式信號接入,兼容性強,大大減少了后期改造時所需的費用




產品詳情:柔性快速門能夠使車輛快速進出冷藏室,減少溫度變化;良好密封,減少冷空氣損耗、節約能源;快速冷藏庫門上的隔熱門簾能夠減少冷凝和結冰。在溫暖的外部溫度和寒冷的內部溫度之間形成很大界限,該高性能冷藏庫專用門的側門柱上的低耗電加熱電
加熱防凍裝置:加熱機構的設計與運用,避免因門體頻繁運行而產生的熱量交換造成導軌凍結,進一步保證門體在低溫環境中穩定運行和工作效率。同時,可以根據需要選裝除箱設備,雙重保障產品在低溫環境下的工作性能。
防撞恢復結構:在發生意外撞擊時門簾可脫軌,并在上升過程中自動復位,全過程無需人工修復和控制單元重新設置。
絕緣保護:控制箱及其它各部件必須達到IP54以上,并符合國家各項電氣安全標準,即使在惡劣環境下使用亦能防水防塵。
開啟速度:0.6-2.5M/S,并可設定
關閉速度:0.6-1.2m/S,并可設定
門簾:高強度環保聚脂纖維材料中間添加抗撕裂織物,拉伸強度大,耐穿性好,門簾之間不會摩擦產生靜電吸附灰塵,門簾中間填充保溫材料。適用溫度:-30到+70℃。
門框軌道:軌道采用優質高強度不銹鋼、鋼質或鋁質軌道
驅動系統:專業工業門HOFIC電機系統組成由:快速門專用高速馬達, 電源220V,功率0.75kw/750轉/S,承載大負荷S4型。失電剎車系統;減速機;手動釋放機構;故障手動裝置等組成
控制系統:采用專用(HOFIC)伺服系統,內核為 DSP 芯片,系統通過接收電機尾部的增量型編碼器信號和機械,原點位開關量信號配合來設定門的開啟高度
預留端口:電控系統預留:紅外線安全保護開關,地磁感應開關,雷達感應開關,接繩開關,遙控開關,雙門互鎖,遠程控制等工程改造時常用的一些信號接口,并采取開關量式信號接入,兼容性強,大大減少了后期改造時所需的費用

